This Circa 2011 home sits on a spacious 405sqm allotment and offers an exceptional opportunity to settle in a sought-after location, only 10 minutes to Glenelg, Westfield Shopping Centre and the Adelaide CBD.
The well considered floorplan offers flexibility and space for young and growing families, the astute first home buyer or downsizer.
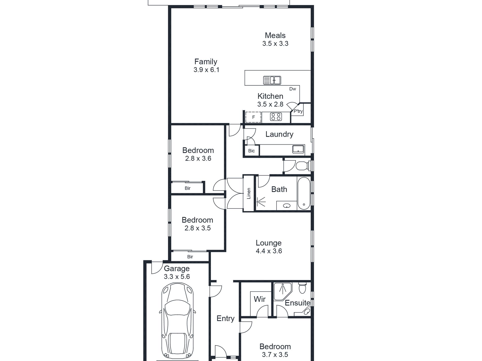
The north facing master bedroom is a luxurious retreat, boasting an ensuite and walk-in robe. Down the hall you will find a second formal living area or home office.
Bedrooms 2 and 3 are equipped with built-in robes, ensuring ample storage space and new window furnishings and are in close proximity to the main bathroom including a bath and separate water closet. The home also includes a brand-new laundry with custom cabinetry, plenty of storage in addition to the linen press in the hallway.
The real feature is the open plan living, dining and kitchen area overlooking the wonderful outside entertaining deck and garden. The well-appointed kitchen, featuring a SMEG gas cooktop and electric oven, dishwasher, pantry and breakfast bar. The open-plan layout seamlessly connects the kitchen to the living and dining areas, making it ideal for entertaining and spending quality family time.
Step outside to discover a charming outdoor decking area, perfect for alfresco dining and relaxation. The low-maintenance garden is complete with an irrigation system, simplifying the upkeep of your lush surroundings. With side access, a spa and a rainwater tank (3000L), this property offers practicality without compromising on style.
FEATURES WE LOVE:
• Main bedroom with ensuite and walk-in robe
• Second living area
• Built-in robes to bedroom 2 and 3
• Ducted zoned reverse cycle A/C
• Laminate floorboards
• Outdoor undercover alfresco
• Automatic irrigation
• Side access
• Rainwater tank (3000L)
• NBN – data points to all bedrooms and living rooms
• BBQ gas bayonet
• 6-star energy rating
• Torrens title
• Single garage with internal access
Built-in Technology list:
• Cooktop SMEG gas 4 burner S/S
• Oven SMEG electric pyrolytic S/S
• Range hood Electrolux retractable S/S
• Dishwasher SMEG with auto door open
• Kitchen Sink BLANCO black granite ZIA
• Ducted A/C Fujitsu with 5 zones
• Security system NESS D8XD with 3 x PIR, 2 x door switch, ext & int siren
• NBN provision in linen. Network 7 CAT6 Ethernet Cables from linen to family, lounge, bed1, bed2 (x2), bed3 (x2)
• Solar system: 20 x Jinko 330w panels (6.6kW), Goodwe 5kW inverter
• SPA IKON by Vortex Spas, model Mercury, 5 person, 46 jets, 1000L, Jet pump 3hp, Circulation pump 250W
• Water tank 3kL, 1kL connected to toilet
• Car charging provision in garage (32A cable to isolation switch)
• Garden watering controller Holman with 3 stations connected
Plympton International College is the designated school zone, and Forbes Primary School is conveniently reachable within a quick 5-minute drive. A brief walk from several private schools including Emmaus Christian College, St Anthony's School and St John the Baptist Catholic Primary School. A diverse range of public transportation choices is available, including a mere 2-minute stroll to the nearest bus stop or the option to utilize the Edwardstown train station. Enjoy the nearby recreation at Jervois Street Reserve and the Oaklands Wetland and Reserve.
All information provided has been obtained from sources we believe to be accurate, however, we cannot guarantee the information is accurate and we accept no liability for any errors or omissions (including but not limited to a property's land size, floor plans and size, building age and condition) Interested parties should make their own enquiries and obtain their own legal advice.
Features
- Ducted Cooling
- Ducted Heating
- Deck
- Outdoor Entertainment Area
- Outside Spa
- Remote Garage
- Secure Parking
- Broadband Internet Available
- Built-in Wardrobes
- Floorboards
- Solar Panels
- Water Tank







































