Perfectly positioned in the heart of Campbelltown, this brand-new townhouse offers modern living with quality finishes and a low-maintenance lifestyle in Adelaide’s sought-after eastern suburbs.
Set on a quiet street surrounded by local parks and reserves, the home provides the perfect balance of comfort and convenience, with shops, cafes, schools and public transport all within easy reach.
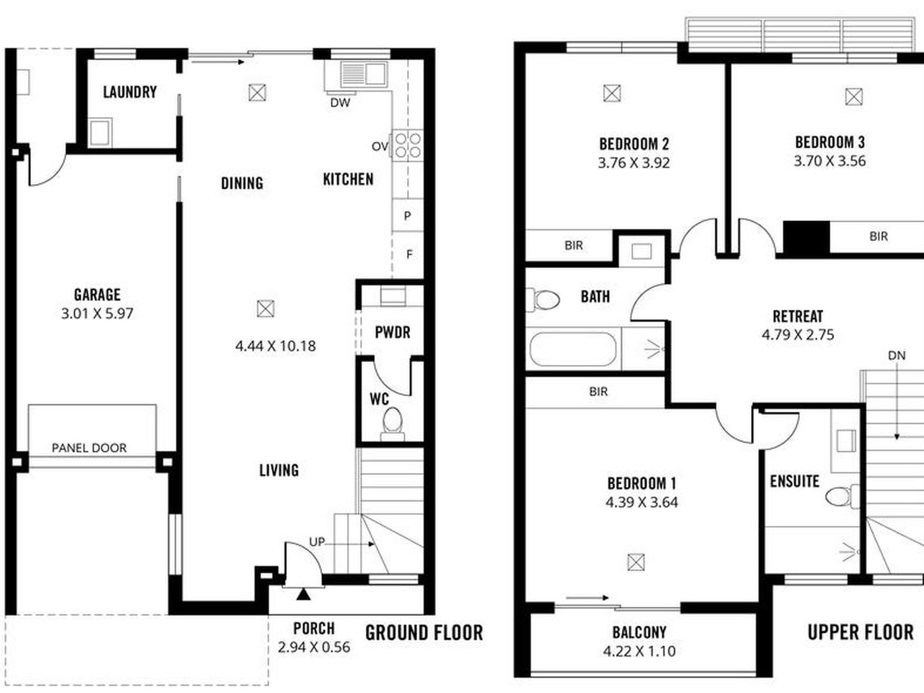
Downstairs features a light-filled open plan living and dining area designed for both everyday living and entertaining. The contemporary kitchen is beautifully appointed with stone benchtops, ample storage, stainless steel appliances and a dishwasher. Doors open to a private, low-maintenance courtyard, ideal for relaxing outdoors.
Upstairs you’ll find the home’s private retreat, including a study nook and three well-sized bedrooms. The master bedroom includes a built-in robe and stylish ensuite, while bedrooms two and three also feature built-in robes and are serviced by the main bathroom with separate bath and shower.
With modern finishes throughout and thoughtful design, this home delivers comfort, space and easy living.
Features you'll love:
- Brand new architecturally designed townhouse
- Three spacious bedrooms with built-in robes
- Master bedroom with ensuite
- Modern kitchen with stone benchtops and dishwasher
- Light-filled open plan living and dining area
- Main bathroom with bath and separate shower
- Additional downstairs powder room
- Study retreat upstairs
- Ducted reverse cycle air conditioning throughout
- Private low maintenance courtyard
- Secure garage with internal access plus additional car space
- Dedicated laundry
AVAILABLE FROM: Now!
WATER CHARGES: Tenant to pay supply and water usage
APPLY: To apply for this property head to the Tenant Options website and find the property on our list of available rental properties.
All information provided has been obtained from sources we believe to be accurate, however, we cannot guarantee the information is accurate and we accept no liability for any errors or omissions (including but not limited to a property's land size, floor plans and size, building age and condition) Interested parties should make their own enquiries and obtain their own legal advice.
Features
- Ducted Heating
- Reverse Cycle Air Conditioning
- Remote Garage
- Built-in Wardrobes
- Dishwasher
- Floorboards





























