Welcome to a rare lifestyle opportunity in the heart of the Adelaide Hills, where nature, space and convenience come together to create the perfect place to live and raise a family.
Set on a generous parcel of land and surrounded by rolling hills and farmland, this estate offers a peaceful escape from city hustle while only 30 minutes from the Adelaide CBD. With a pool, a synthetic grass tennis court and room to grow, this property offers the perfect country lifestyle- a place where family and friends can come together.
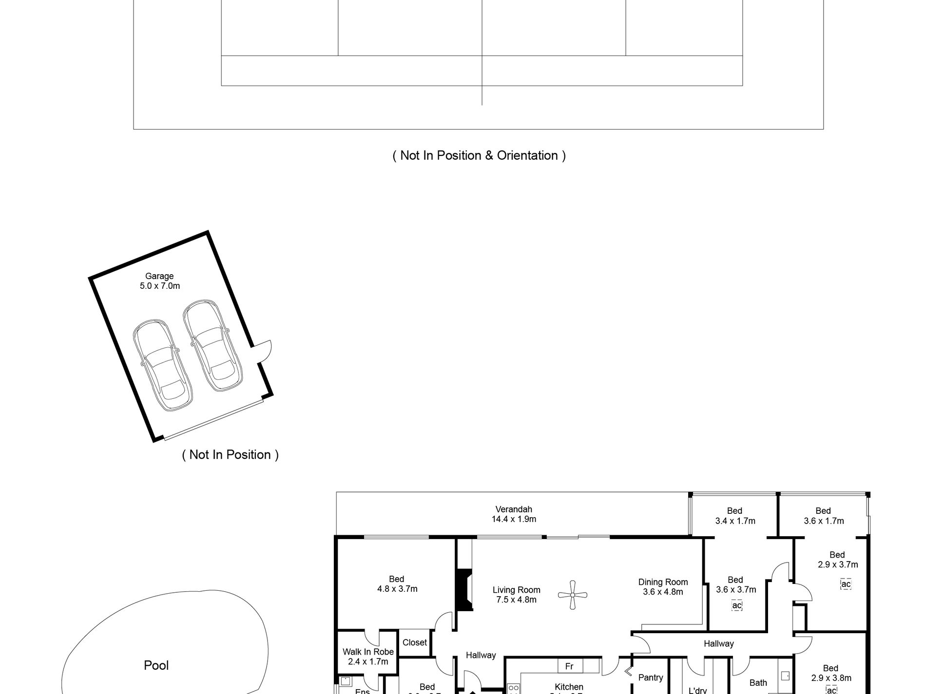
The house sits on approximately 3 acres of land, blending a mix of established garden and native bush land. There is a separate vegetable garden and a chook run. The bushland is home to visiting kangaroos and koalas, birds and even native orchids.
The lounge/ dining area has raked ceilings with feature beams and a soul warming slow combustion heater. The large main bedroom in the eastern wing has a walk in wardrobe and a new contemporary ensuite. You will wake up to birdsong and beautiful views from the expansive floor to ceiling windows. Across the living space and down the hall , bedrooms 3, 4 and 5 offer beautiful window wrapped tiered spaces that lend themselves to study spaces, reading nooks or sitting rooms.
The gourmet kitchen has been updated in recent years to provide everything the home cook could desire. There are designer appliances and sweeping bench tops, and a walk in pantry adds to the abundant storage.
The spacious main bathroom has a family friendly tub and a rain shower. The adjacent laundry has plenty of storage and a separate WC.
Features you'll love-
- Contemporary kitchen with abundant storage, Electrolux oven, Asko dishwasher and a walk in pantry.
- Winter warming slow combustion heater and highly efficient reverse cycle ducted air conditioning.
- Elevated all weather verandah overlooking gardens.
- Lovely sunny patio for alfresco dining.
- Surrounded by gardens planted with gorgeous roses, wisteria and camellias.
- Inground swimming pool and fish ponds.
- Synthetic lawn tennis court with epic views.
- Veggie garden and chook run.
- Beautiful birdsong and wildlife including koalas in the trees and kangaroos lounging on the lawn.
- Local to Coromandel Primary, Blackwood High School and Aberfoyle Park high School.
- Just seven minutes to the convenience of Blackwood Shopping centre and the Blackwood train station for a breezy commute to the CBD.
- 14 minutes to Crafers, Stirling and Aldgate for schools, foodies and boutique shopping.
LEASE TERM: 6 months
AVAILABLE FROM: 19th December 2025
WATER CHARGES: Tenant to pay supply and water usage
APPLY: To apply for this property head to the Tenant Options website and find the property on our list of available rental properties.
All information provided has been obtained from sources we believe to be accurate, however, we cannot guarantee the information is accurate and we accept no liability for any errors or omissions (including but not limited to a property's land size, floor plans and size, building age and condition) Interested parties should make their own enquiries and obtain their own legal advice.
Features
- Air Conditioning
- Reverse Cycle Air Conditioning
- Fully Fenced
- Outdoor Entertainment Area
- Secure Parking
- Shed
- Swimming Pool - In Ground
- Tennis Court
- Broadband Internet Available
- Built-in Wardrobes
- Dishwasher
- Floorboards
- Rumpus Room
- Study
- Workshop
- Water Tank



