Positioned in a highly convenient location in Newton, this well-presented townhouse offers the perfect blend of comfort, style, and accessibility; ideal for families or professionals seeking low-maintenance living close to everything.
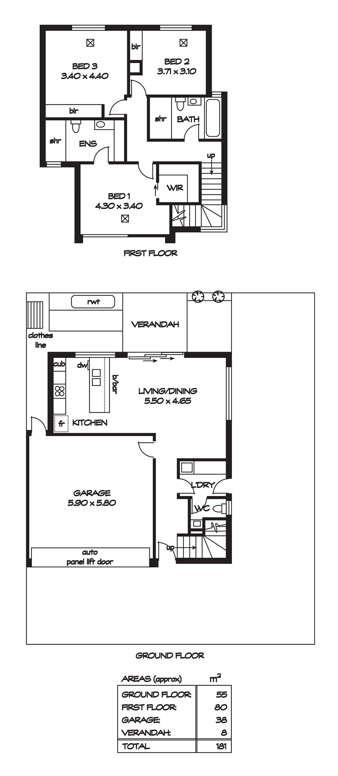
Step inside to discover a thoughtfully designed layout featuring a spacious master bedroom complete with a private ensuite and walk-in robe. Two additional bedrooms, both fitted with built-in robes, are serviced by a modern central bathroom, ensuring ample space for the whole household.
At the heart of the home lies a well-appointed kitchen equipped with modern appliances, seamlessly overlooking the open-plan living and dining area—perfect for entertaining or relaxing in style.
Sliding doors lead out to a private backyard with a covered veranda, creating the ideal space for outdoor dining or unwinding at the end of the day.
Additional features include a secure double garage providing both parking and extra storage, a remote key alarm system for added peace of mind, and ducted air conditioning to ensure year-round comfort.
Centrally located nearby Newton Village Shopping Centre with several reserves and parks in the local area, perfect for daily exercise and perfect for family living. With its walking trails, playgrounds, and picnic spots, Thorndon Park Reserve is only around the corner and ideal for recreation and exercise. Nearby you can also find the Campbelltown City Soccer and Social Club, Black Hill Conservation Park, and other smaller reserves offer diverse outdoor options.
AVAILABLE FROM: 15th April 2026
WATER CHARGES: Tenant to pay supply and water usage
APPLY: To apply for this property head to the Tenant Options website and find the property on our list of available rental properties.
All information provided has been obtained from sources we believe to be accurate, however, we cannot guarantee the information is accurate and we accept no liability for any errors or omissions (including but not limited to a property's land size, floor plans and size, building age and condition) Interested parties should make their own enquiries and obtain their own legal advice.
Features
- Ducted Cooling
- Ducted Heating
- Remote Garage
- Built-in Wardrobes
- Dishwasher





















