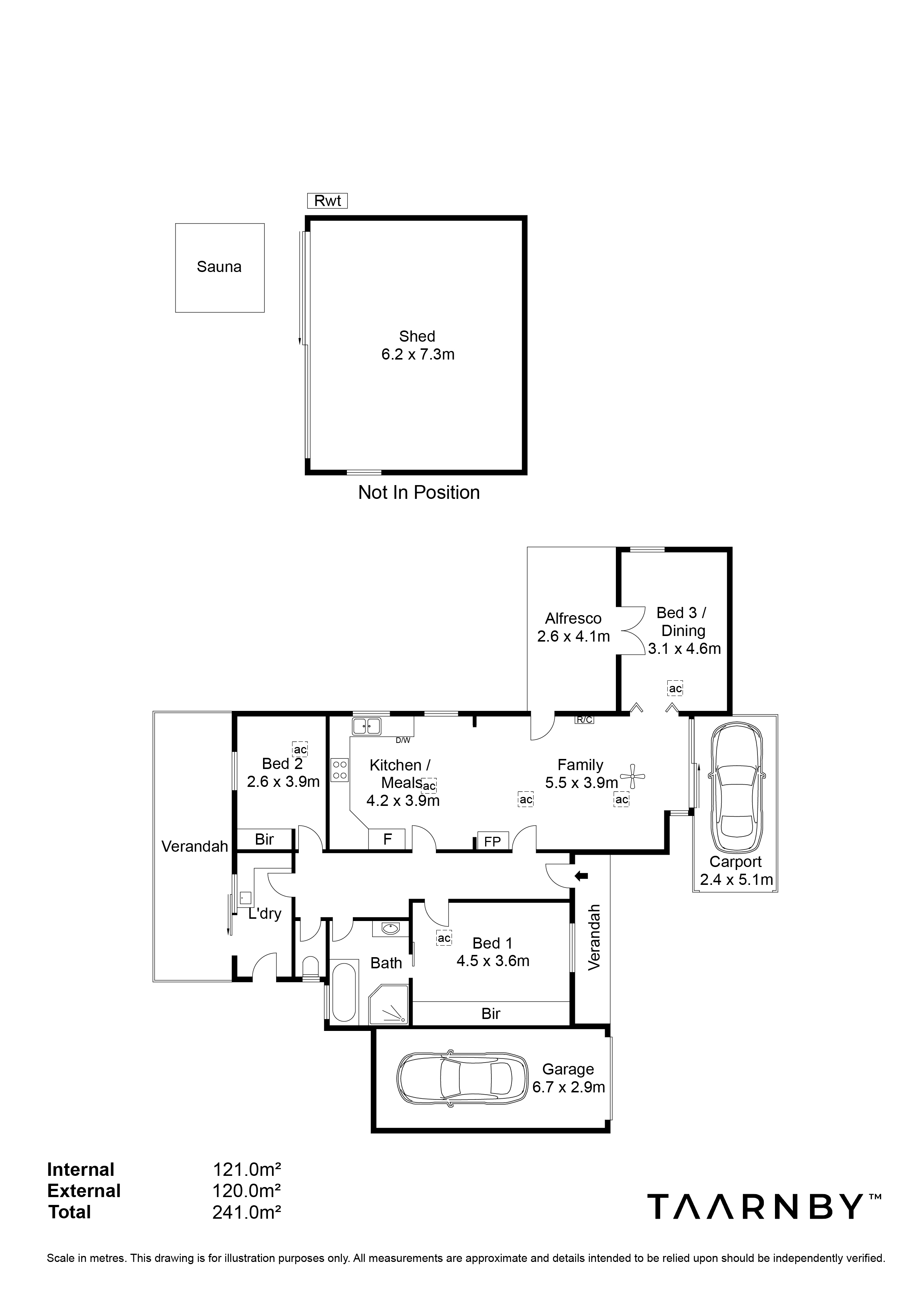
Quietly set back from Belair Road yet brimming with natural light and character filled aesthetic, this understated 3-bedroom surprise delivers a lifestyle of ease, elegance, and clever versatility. Stylishly reimagined from its solid brick 70s bones, this understated haven now hums with sleek modern feature and contemporary comfort. Warm timber floors, wide windows, and soft skylit ambience set a calming tone through the open-plan living and dining anchored by a crisp modern kitchen, while the main bedroom enjoys ensuite access to the sparkling bathroom, and a flexible third doubles as a second lounge flowing to an intimate alfresco escape.
Outdoors, an unexpected sanctuary awaits—a paved courtyard framed by lush greenery, hidden firepit for twilight catch-ups, and even a Scandi-inspired sauna for your own slice of wellness luxury. Add in ducted climate control, ambient LED lighting, solar panels, and large shed for storage smarts, and this light-filled gem nails the brief for low maintenance living with all the right lifestyle notes: private, polished, and perfectly poised for your exciting next chapter.
FEATURES WE LOVE
- Light, bright + airy open-plan living/dining/kitchen combining for one seamless social hub
- Spacious contemporary kitchen featuring great bench space, abundant cabinetry, dishwasher + stainless in-wall oven
- Lovely main bedroom with wide BIRs + ensuite access to the main bathroom spilling with natural light, separate shower/bath/WC
- Well-sized 2nd bedroom with BIRs
- Generous 3rd bedroom or inspiring home office/second lounge option
- Functional laundry, ducted AC throughout + solar panels for lower energy bills
- Charming enclosed alfresco, low maintenance courtyard + lush established gardens meandering up to a private firepit
- Rejuvenating sauna for full body relaxation
- Large shed, carport + secure garage with roller door
- Orchard featuring a variety of fruit trees: 9 pear, 2 plum, 2 peach, 1 nectarine, 1 apricot, and 1 cherry
- Moments from Hyde Park, King William Road, and Goodwood Road - offering vibrant cafés, fine dining, and boutique shopping
- Only 20 minutes from the beach
- Zoned to Mitcham Village Kindergarten, Clapham Primary School & Unley High School
Poised on the fringe of the foothills, Torrens Park strikes that beautiful balance between leafy serenity and lifestyle convenience. With scenic reserves and nature trails inviting weekend adventure, the local YMCA keeping wellness close to home, and Torrens Park Train Station right across the road promising effortless CBD access, life here flows with consummate ease. Yet there’s no rush to head city-bound when Mitcham Square sits just a short stroll away—your go-to for morning coffees, boutique shopping, gourmet groceries, and easy-going weekend entertainment all wrapped in that unmistakable village charm this southern suburb is loved for.
Features
- Ducted Cooling
- Ducted Heating
- Open Fireplace
- Outdoor Entertainment Area
- Remote Garage
- Secure Parking
- Built-in Wardrobes
- Floorboards
- Solar Panels



























